2.1 大野郡七ヶ用水
大野郡旧富田村(現大野市)の下唯野、七坂、下麻生島(元三ヶ用水)、土打、上野、富島、森目、井ノ口、新田(元四ヶ用水)の各地区に、九頭竜川から水を取り入れる七ヶ用水工事が施工されたのは、江戸時代後期である。なかでも四ヶ用水は、富田地区の重要な用水路であり、建武2年(1335)7月12日付き諸庄園目録(西園寺文書)に「越前国富田庄」の名がみられることから、中世には整備されていたものと伝えられている。
七ヶ用水は、九頭竜川の洪水のたびに取水堰が流失したり、取水口や水路が土砂礫で埋没するなど、地区の人々にとって復旧は大きな負担であった。
昭和16年(1941)10月、農林省は食料増産のため富田地区北部に広がる栗原野を農地開発法によって、水田58町歩、畑地29町歩の開拓造成事業を3ヵ年計画として樹立し、同年12月より着工した。その用水は、九頭竜川より導水する計画であり、七ヶ用水関係者は福井県に対して用水路の改築を強く要請した。そこで県は、昭和20年(1945)10月に県営大野郡七ヶ用水改良事業に着手した。この工事は、用水取水口を約1.4km上流の通称岡田淵に求め、九頭竜川左岸沿いに1,354mの用水路を築造し、勾配1/2,000で5.115m3/sを流下させ、旧取水口の水門前にて既設水路に導くものである。用水路は、一部区間(約287m)に隧道を築造するあvsxvなど、画期的な工法を用いたものであった途中、終戦後の経済的混乱のため賃金・資材が高騰するなど、幾たびかの計画変更を経て、昭和26年(1951)3月末に完成した。大野郡七ヶ用水は、酒生用水、松ヶ鼻用水についで3番目の県営用水改良事業であったが、隧道工を採用したのは最初であり、意義の深い事業であった。
七ヶ用水は、九頭竜川の洪水のたびに取水堰が流失したり、取水口や水路が土砂礫で埋没するなど、地区の人々にとって復旧は大きな負担であった。
昭和16年(1941)10月、農林省は食料増産のため富田地区北部に広がる栗原野を農地開発法によって、水田58町歩、畑地29町歩の開拓造成事業を3ヵ年計画として樹立し、同年12月より着工した。その用水は、九頭竜川より導水する計画であり、七ヶ用水関係者は福井県に対して用水路の改築を強く要請した。そこで県は、昭和20年(1945)10月に県営大野郡七ヶ用水改良事業に着手した。この工事は、用水取水口を約1.4km上流の通称岡田淵に求め、九頭竜川左岸沿いに1,354mの用水路を築造し、勾配1/2,000で5.115m3/sを流下させ、旧取水口の水門前にて既設水路に導くものである。用水路は、一部区間(約287m)に隧道を築造するあvsxvなど、画期的な工法を用いたものであった途中、終戦後の経済的混乱のため賃金・資材が高騰するなど、幾たびかの計画変更を経て、昭和26年(1951)3月末に完成した。大野郡七ヶ用水は、酒生用水、松ヶ鼻用水についで3番目の県営用水改良事業であったが、隧道工を採用したのは最初であり、意義の深い事業であった。
七ヶ用水の管理は、昭和23年(1948)の水利組合条例制定を機会に七ヶ用水普通水利組合が設立され、富田村役場において業務を実施していたが、昭和27年(1952)に富田土地改良区設立と同時に、そこへ引き継がれた。
その頃、北陸電力株式会社は、九頭竜川本川と真名川の河川水を導水して、低落差の発電所を計画した。そして、北陸電力㈱の富田・壁倉発電所建設に伴い、富田土地改良区と北陸電力㈱との間に、農業用水の全面確保、分水の共同管理、用水幹線の現状維持などを定めて契約が締結され、北陸電力㈱が導水した水を分水して利用することとなった。
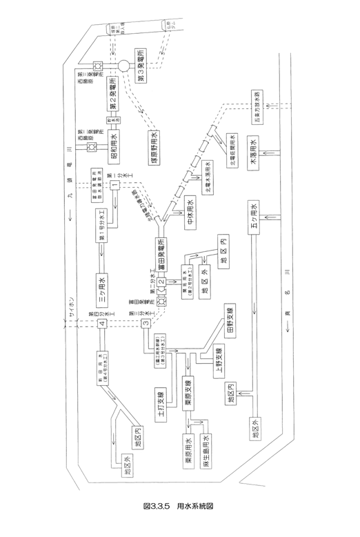
用水系統の概要は、図3.3.5のとおりである。
その頃、北陸電力株式会社は、九頭竜川本川と真名川の河川水を導水して、低落差の発電所を計画した。そして、北陸電力㈱の富田・壁倉発電所建設に伴い、富田土地改良区と北陸電力㈱との間に、農業用水の全面確保、分水の共同管理、用水幹線の現状維持などを定めて契約が締結され、北陸電力㈱が導水した水を分水して利用することとなった。
用水系統の概要は、図3.3.5のとおりである。